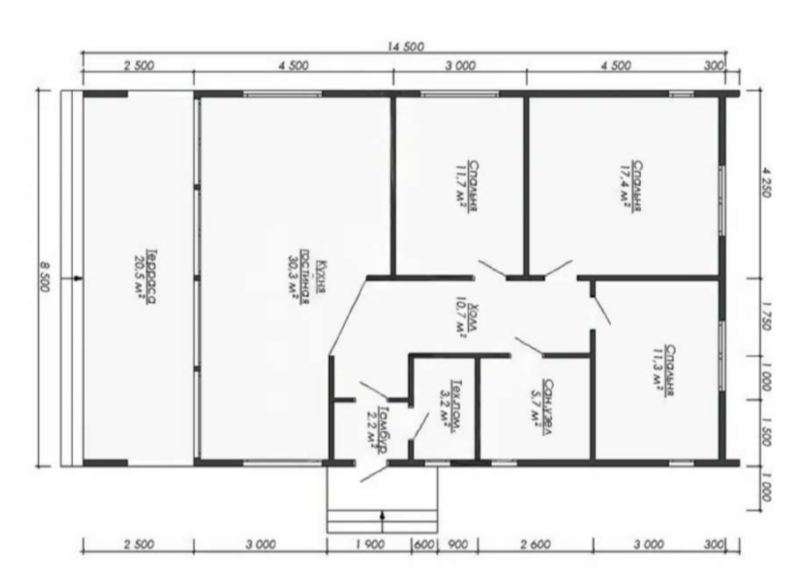
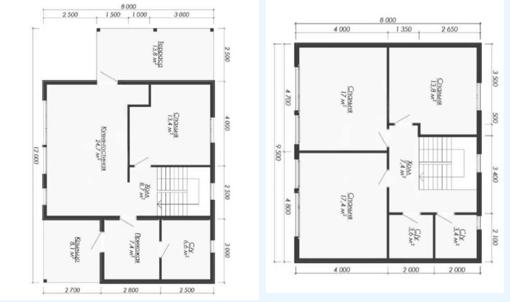
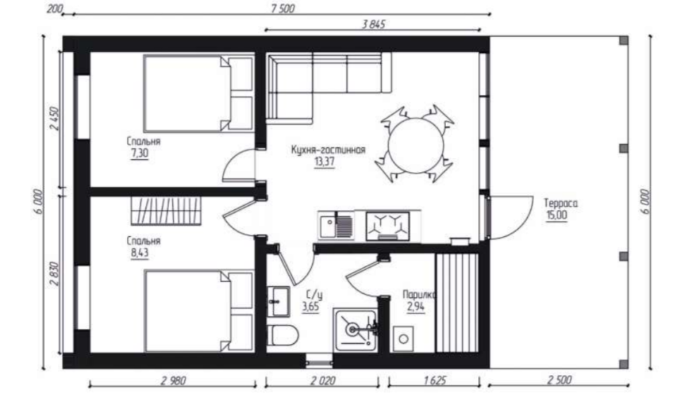
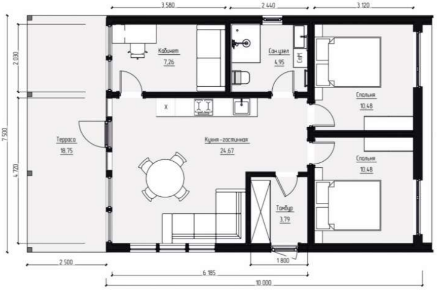
Строительство домов в Краснодаре
ежедневно с 9 до 18
Какую площадь дома планируете ?
Есть ли у вас земельный участок?
Предполагаемый бюджет на строительство ?
Когда вы хотите начать строительство?
Выберите свой подарок
Расчет почти готов! Результаты придут вам на телефон в течение 2х минут
Отправка формы
Подтвердите, что вы не робот
или нажмите Enter
Какую площадь дома планируете ?
Есть ли у вас земельный участок?
Предполагаемый бюджет на строительство ?
Когда вы хотите начать строительство?
Выберите свой подарок
Расчет почти готов! Результаты придут вам на телефон в течение 2х минут
Отправка формы
Подтвердите, что вы не робот
или нажмите Enter